Gas works

SYNERSYS Gas Works

As your premier gas piping solution provider, we excel in delivering expert services for laboratories. Our dedicated team specializes in designing, installing, and maintaining precision-engineered gas piping systems, ensuring safety, efficiency, and compliance.

Choose us for tailor-made solutions that prioritize precision and reliability. Our seasoned specialists offer top-notch gas architecture design services for projects of all scales, guaranteeing swift and efficient assembly and installation with a focus on safety and efficiency. Elevate your laboratory’s performance with our industry-leading expertise.

01CADDRAWING

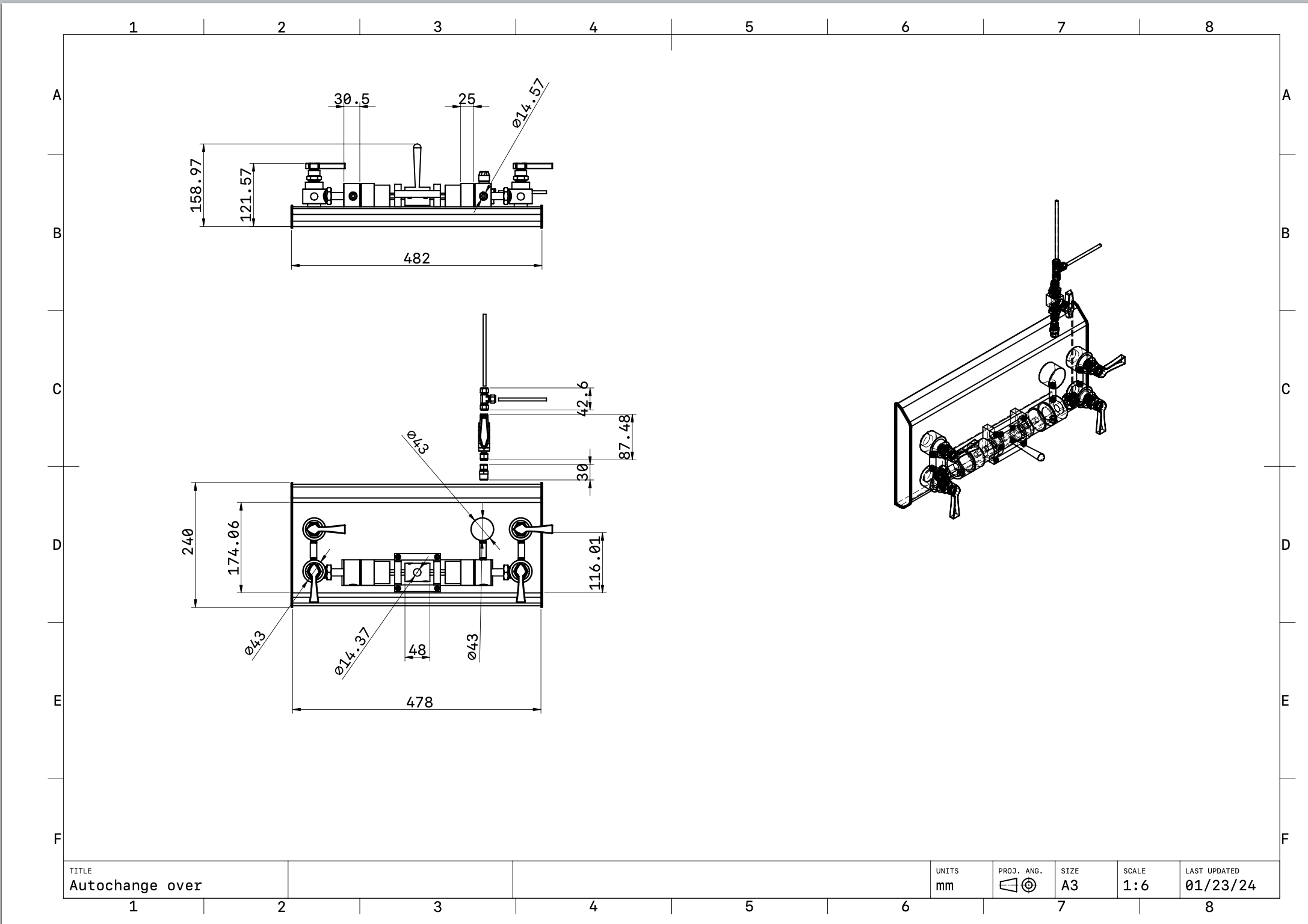
Computer Aided Design (CAD) Drawing

Synersys take pride in offering top-notch gas piping solutions that not only meet industry standards but exceed expectations.
One key aspect is to incorporate CAD drawings which enables us to seamlessly translate laboratory requirements into detailed and
accurate drawings, facilitating effective planning, discussions, and flawless execution.

Benefits of CAD Drawings

Precision in Design

Our CAD drawing ensure precision and accuracy in our gas piping design contributes to the overall efficiency and safety of the installation process.

Enhanced Planning

With 2D CAD drawing or 3D models, we are able to provide comprehensive visualizations of gas piping systems, aiding in effective project planning. This allow our clients to make informed decisions, identify potential challenges, and optimize the layout for maximum efficiency

Collaborative Discussions

The detailed CAD drawings serve as a powerful communication tool, facilitating collaborative discussions among stakeholders. Clear visualizations enhance understanding, allowing for smoother communication between our team, clients, and other involved parties.

Customization and Flexibility

The drawing allow for easy customization to accommodate specific project requirements. Whether it’s adjusting pipe diameters, rerouting lines, or incorporating client preferences, our flexible approach ensures that the design aligns perfectly with the unique needs of each project.

02PROCESSFLOW

Our Process Flow

Design

Designing Gas System

Leveraging the expertise of our seasoned gas specialists and our in-house CAD drafters, we meticulously craft layout sketches and designs to cater to your specific requirements. Our focus is on ensuring safety, expandability, and functionality, delivering tailored solutions that exceed expectations.

Submit

Authorities Submission

Dealing with inherently toxic, explosive, or flammable gases requires special consideration in our design phase, adhering to regulatory requirements and submission processes. We specialize in calibrating designs for the safe use of these gases, alleviating your concerns when dealing with authorities. Trust us to deliver efficient, compliant gas system designs, prioritizing safety throughout.

Collect

Collect from Warehouse

With an expansive warehouse stocked with a wide array of gas fittings, piping, regulators, and spares, we capitalize on this advantage to provide solutions swiftly, outpacing others in the market. Our experienced engineers are well-versed in all aspects of gas fittings, enabling us to accommodate any changes in your requirements with agility and precision

Install

Install & Orbital Welding

Our skilled engineers and welders seamlessly translate their experience and expertise into turning our designs into reality, without compromising on quality, safety, or functionality. We are dedicated to meeting all your requirements with precision and ensuring that the final product reflects the highest standards.

03GALLERY